„Wir können den Wind nicht ändern, aber die Segel anders setzen.“
Aristoteles (384 - 322 v. Chr.)
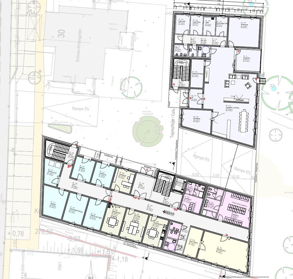
Das neue Pflegeheim beim Schloss nimmt in der Planung Gestalt an
Das Schloss Urbach steht seit Jahrzehnten als Synonym für die Urbacher Altenhilfe. Nachdem aufgrund der geänderten Landesheimbauverordnung das benachbarte Pflegeheim des Alexander-Stifts nur noch für begrenzte Zeit weiter betrieben werden darf, ist der Bau eines neuen Pflegeheimes erforderlich. Der Gemeinderat hat sich nach gründlicher Diskussion auf das Schlossareal als Standort dafür festgelegt. Die Planungen sind soweit fortgeschritten, dass Grundrisse, Ansichten und Visualisierungen veranschaulichen, wie das neue Haus später einmal aussehen wird. Das Luftbild zeigt an der Hofackerstraße anliegend das neue L-förmige Pflegeheim aus der Vogelperspektive mit „Anflugrichtung“ von Westen her.
Lage
Bauherrin des neuen Pflegeheimes ist die Kreisbaugruppe. Das Alexander-Stift, das zur Diakonie Stetten gehört, wird das Pflegeheim betreiben. Auch eine Tagespflege wird im Haus beheimatet sein, der Betreiber dafür ist im Moment noch offen.In der letzten Sitzung des Ausschusses Leben im Alter (ALiA) am 8. März 2022 wurde der derzeitige Stand der Planungen vorgestellt.
Das Pflegeheim wird an der Hofackerstraße südlich des bestehenden Alexander-Stifts errichtet. Der Eingangsbereich ist zur Hofackerstraße orientiert, von dieser aus wird das Haus auch über einen vorgelagerten Innenhof angefahren und angedient.
Auswirkungen auf den benachbarten Schloss-Kindergarten
Durch Grunderwerb ist es gelungen, das Bauwerk so ausrichten zu können, dass das Gebäude Hofackerstraße 30 bestehen bleiben kann, in dessen Erdgeschoss sich die Kindergartengruppe des Schloss-Kindergartens befindet und darüber Mietwohnungen.
Ein anfangs für unausweichlich erachteter Abriss des Gebäudes ist damit nicht mehr notwendig und würde erst in einer unbekannten Zahl von Jahren bei einer ggf. anstehenden Realisierung eines zweiten Bauabschnittes spruchreif werden. Der Außenbereich des Kindergartens wird durch den Neubau spürbar beschnitten, doch auch danach wird er noch deutlich größer ausfallen als nach der Betriebserlaubnis vorgeschrieben. Eltern und Erzieher*innen wurden und werden von der Verwaltung darüber und über den Planungsfortschritt laufend informiert.
Gebäudeform und Geschossigkeit
Beim neuen Pflegeheim wird es sich im ersten Bauabschnitt um ein in etwa „L“-förmiges dreigeschossiges, teilunterkellertes Flachdachgebäude handeln, das in einem zweiten Bauabschnitt irgendwann einmal zu einem „U“ erweitert werden könnte. Während die Pflegeabteilungen im ersten und zweiten Obergeschoss zusammenhängen, ist das Erdgeschoss durch einen großzügigen Durchgang vom Innenhof in Richtung Schlosspark unterbrochen. Diese aufgeweitete Durchgangsgestaltung war Gemeinderat, Gemeindeverwaltung und dem Seniorenrat Urbach mit seinem Beirat „Pflegeheim“ besonders wichtig, entsprechend nahmen sie Einfluss auf die Planung und freuen sich nun, dass dies so berücksichtigt werden konnte.
Pflegezimmer/-gruppen
Sowohl das erste als auch das zweite OG umfasst je 22 Pflegeeinzelzimmer, 11 in jeder von zwei Pflegegruppen pro Etage. Die „Kapazität“ des neuen Heimes umfasst somit insgesamt 44 Dauerpflegeplätze. Jede Pflegegruppe hat einen großzügigen Aufenthaltsbereich mit Loggia Blickrichtung in den Schlosspark sowie eine Küche, in der täglich frisch gekocht wird.
Ansichten
Und so wird sich das Pflegeheim in den Außenansichten aus den vier Himmelsrichtungen präsentieren:
Parkierung
Die Zahl der Parkplätze im direkten Umfeld und die Herstellung von Wegebeziehungen im Schlosspark waren Gegenstand der Diskussion, angestoßen u.a. auch vom Beirat Pflegeheim des Seniorenrats. Den Beteiligten ist die Herausforderung bewusst. Die Gemeinde Urbach hat sich mit dem Gebiet um eine Aufnahme ins Landessanierungsprogramm beworben und würde bei Berücksichtigung in den Genuss entsprechender Fördermittel kommen. Nach Eintritt der Förderbedingungen soll eine Neuplanung des Parkierungskonzeptes im Schlossareal beauftragt werden mit dem Ziel, mehr Parkraum zu schaffen.
Schlosspark und Wegebeziehungen
Der Schlosspark soll zu einem familiengerechten Schlosspark für alle Altersgruppen mit einer hohen Aufenthaltsqualität entwickelt werden. Die barrierefreie Durchquerung mit Rollstuhl oder Rollator über sinnvolle Wegebeziehungen u.a. vom Schloss zum Pflegeheim soll ebenso möglich sein wie das Ausruhen auf kleinen Oasen der Entspannung. Auch Anregungen für Menschen mit Demenz soll es geben. Der alte Baumbestand soll weitestgehend unangetastet bleiben.
Zeitplan
Die Kreisbaugesellschaft hat am 07.12.2023 die Baugenehmigung für das Pflegeheim mit Tagespflege und Mitarbeiterappartements eingereicht. Mit einer Baugenehmigung wird bis Sommer 2024 gerechnet. Eine ca. zweijährige Bauzeit schließt sich an.










